Jeena Hermano

Architecture and Interior Design

Polished | Minimal | Balanced

My designs are carefully curated with purpose. I integrate harmony and impact into interior spaces.

Spa Day

Interior Design | Furnishing

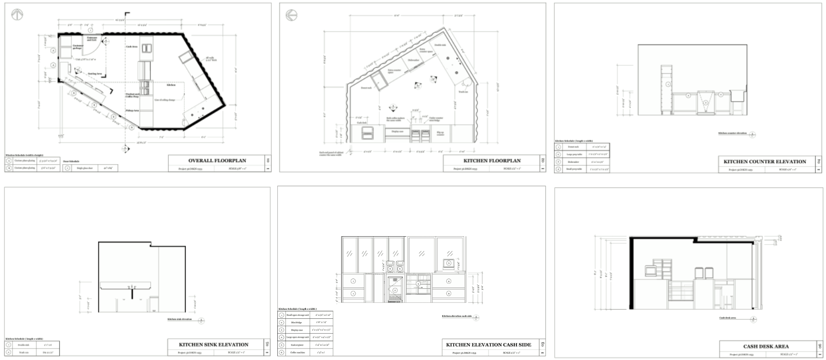
Objective: Create a 3D model of an 8’x12’ floor with 4.5” thick 12’ high walls mini salon/barbershop based on Japanese, Modernist, 50’s Scandinavian, California, Boho or Hipster themes.

I had been tasked with a rustic design style. After researching this style and creating layout diagrams, I iterated designs in SketchUp and assessed spatial relationships between elements. Feedback shaped the final branded salon, using materials to enhance a rustic feel. The completed project included a furniture, fixtures, and equipment (FFE) board and a material board, illustrating selected materials and furnishings as part of the spa’s finished interior.

Donut Shop

Architecture | Interior Design | Model Making

Objective: Develop the functional space for a Donut shop using the intersections of two shipping containers. Utilize CAD to create floor plans and elevations to then create a scale model.

For the donut shop, it was important to iterate and experiment with various shop designs to make use of the small space. When I had come to a final layout, I was able to use SketchUp and Layout to produce orthographic and technical drawings while also giving respect to the true city bylaws for equipment. By creating individual scenes of each object in my SketchUp model, I was able to laser-cut the exterior walls of the donut shop. Then I used a process of ink transfer to build the equipment included in the interior space. As a result, I was able to successfully build a physical-scale donut shop model named Doughy. The materials used in the process were taskboard, glue, and clear acetate.

Extra Ordinary Project

Experiential Design

Objective: From a lottery selection of random objects, identify, research and then design an engaging presentation that expresses the experience of an object in only white paper.

The mystery item I had received was a vintage porcelain Kewpie doll, modelled after Rose O’Neill’s Kewpie illustrations. After doing thorough research on my assigned object, I began hand-sketching and iterating ideas while combining attention-getting devices such as nostalgia, scale, and repetition. Using these devices helped me refine my design choices to create and display an experience that best suited the doll. The design as a whole had been hand-cut by me using an Exacto knife and scissors. The materials I used in my extraordinary model were several pieces of bluejay paper, foamcore, tape, glue, and wooden cubes.

Luminous Object

Sustainability | Fabrication

Objective: Design, Document, and Fabricate a small Luminous Object, while exploring the relationship between Narrative, Form, Materiality, and Value— from concept to fabrication.

For my luminous object, I drew inspiration from the “floating lights” in the Disney movie Tangled. Experimenting with different forms and elements of the lamp through hand sketches and scaled cardboard mockups allowed me to receive constructive feedback and helped me envision the outcome. Once I decided on a design, I replicated my lamp in SketchUp and Layout to generate orthographic views and measurements, then began fabrication. I worked closely with an experienced carpenter to build the lamp. The materials used in this process included different thicknesses of plywood, a variety of tools, glue, and the supplied light and cord.

Cookbook

Typography | Communication

My group and I chose to create a child-friendly cookbook. Reflecting on our childhoods, an important cartoon character for us growing up was SpongeBob SquarePants. Therefore, we created a SpongeBob SquarePants-themed cookbook with easy-to-follow recipes for children to make before bedtime. As a group, we used Illustrator for the graphics and experimented with different typefaces. Our final product is a fun and accessible cookbook for children, featuring engaging visuals and simple instructions that encourage independent cooking before bedtime.