Delphina Ho

Multidisciplinary Designer

Gold stylized letter M above the text "Delphina Ho" in gold uppercase serif font.

Sophisticated | Entropic | Dynamic

Creating thoughtful, human centric experiences through dynamic imagination.

Close-up of a young woman with long dark hair, wearing hoop earrings and a black top, smiling against a plain light gray background.

Donut Shop

Architecture | Interior

Objective: Design a Donut shop by intersecting two shipping containers. Create floor plans and elevations in CAD, then construct a scale model.

The donut shop focuses on transforming a compact shipping container into a functional, welcoming space. A diagonal cut allows angular glazing, bringing natural light into the interior and creating visual connections that make the small space feel more open. The layout also prioritizes smooth circulation, allowing customers to move easily between ordering, pickup, and seating areas while maintaining an efficient workflow for staff.

A miniature wooden architectural model of a building with multiple rooms and a rooftop terrace, set against a black background.
Wooden architectural model of a multi-story building with stairs, labeled "CRBIT" on the side, set against a black background.
A detailed architectural model made of thin wood showing multiple floors, walls, and stairs, set against a black background.

Plans

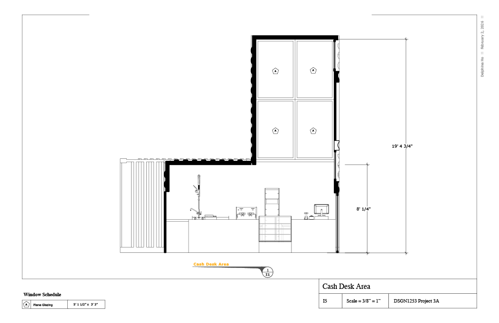
Architectural drawing of a cash desk area with measurements and window schedule.
Architectural drawing of a seating area with custom plane glazing, a staircase, and customer seating area, including dimensions and detail notes.
Kitchen floor plan with dimensions, including a doorway, cleaning supplies area, bread packaging station, beverage station, and display case.
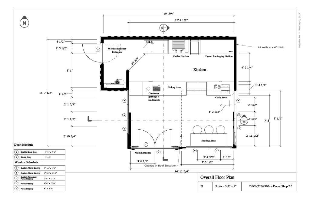
A detailed architectural floor plan of a donut shop, including labeled sections such as the main entrance, kitchen, customer seating area, cashier area, pickup area, and various stations for coffee and donut packaging, with dimensions and wall thickness noted.
Architectural blueprint of a kitchen back elevation showing measurements and labeled fixtures such as a sink, garbage bin, coffee machine, mini fridge, donut storage shelf, and packaging storage.
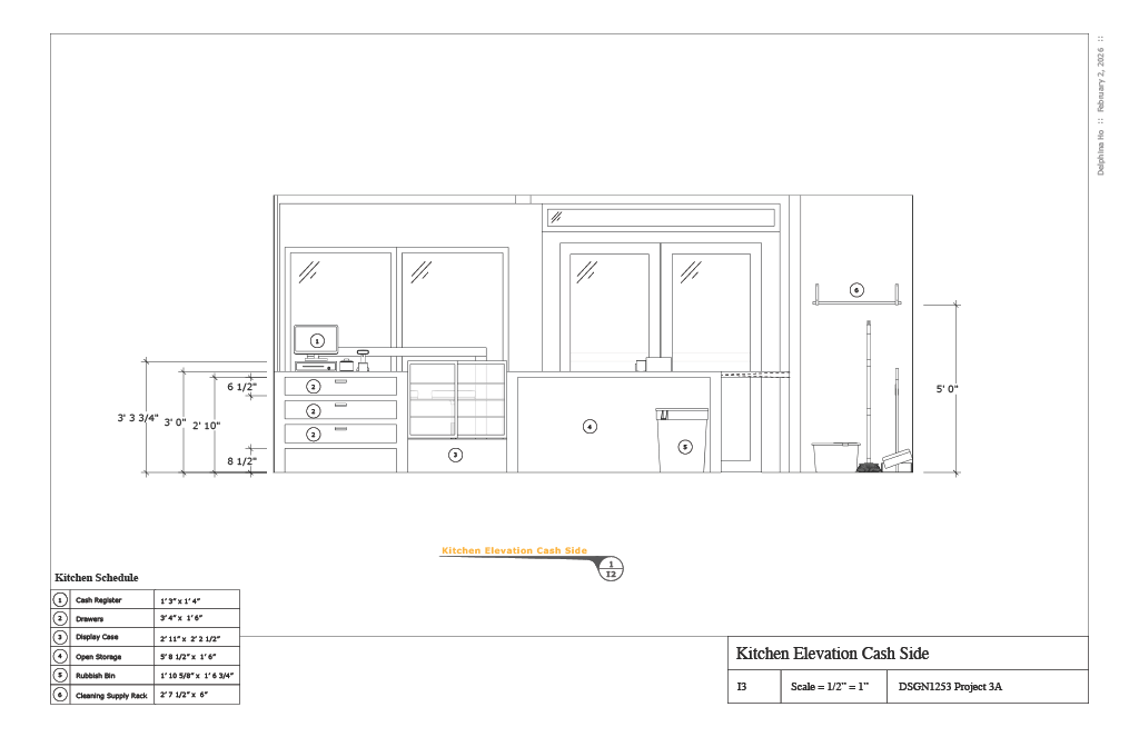
Architectural drawing of a kitchen elevation view showing cabinets, countertops, drawers, display case, open storage, rubbish bin, cleaning supply rack, and a window, with measurements and labels.
Empty white bar counter with three black bar stools in front of a white partition, on a hexagonal tiled floor outside, sunlight casting shadows.

Renders

Small two-story building with a neon sign that reads 'CREDIT' on the front, large glass windows, and a rooftop deck. The building has a modern design with brick and glass elements.
Break room or kitchen area with hexagonal tile floor, sink with faucet, shelving unit, and a counter with a point-of-sale system, under sloped ceiling and partial wall with windows.
A menu displaying images of twelve different donuts on the left, with a list of donut flavors numbered 1 to 12 and drink options numbered 1 to 6 on the right side.

Mixed-use Laneway House

Architecture | Interior

Objective: Design a laneway house that reimagines the potential of Vancouver’s urban fabric by
integrating nonresidential programs to create dynamic, mixed-use corridors. Explore how these
often overlooked spaces can evolve into vibrant community hubs that balance residential living with broader neighbourhood engagement.

The laneway house integrates residential and commercial programs: a cafe, study, and library. The street-facing cafe serves commuters and students fresh coffee and tea. Visitors can study, read, or relax in the dedicated seating area. The adjacent library, inspired by Vancouver’s Little Free Library, operates a “take a book, share a book” system to foster community exchange. Access to the residential area is strictly limited: the staircase is embedded within the café’s service zone, behind the counter, ensuring only staff and owners may enter. Above, the home offers a lofted living area with high ceilings in the kitchen and living room, creating an open, retreat-like atmosphere. A split level bedroom mezzanine overlooks the main space, maintaining privacy and reinforcing the vertical connection between zones.

Miniature architectural model of a modern building with trees and small figurines in front, some with a sign labeled 'Flow'.
Architectural model of a modern house with trees and miniature people, made of cardboard and paper.
Architectural model featuring two modern houses with trees in front, the house on the left is made of wood with vertical slats and a small staircase, and the house on the right is white with a gabled roof, all set on a flat base
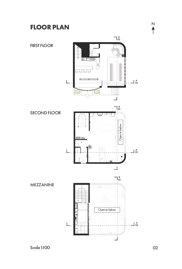
Architectural floor plan of a three-story house showing the first floor, second floor, and mezzanine levels with room layouts and labels.
Site plan drawing showing a house with a complex roof, two trees, and a rectangular building or garage at the bottom, with north indicated at the top right.
Two building section drawings labeled Section A and Section B, showing interior layouts at a scale of 1:100.
A cozy bedroom with a sloped ceiling and large skylight, featuring a bed with light-colored bedding, a wooden sideboard with books and a large potted plant, and a tall arched floor lamp.

Renders

Interior of a modern coffee shop with a counter, bar stools, coffee equipment, jars of ingredients, and a menu on the wall.
Modern living room with a beige sofa, a wooden coffee table, and a tall floor lamp. Large window with decorative wooden grille panels, allowing natural light to fill the room.

Renders created with Google Gemini

Parklet

Architecture | Graphics

Objective: Design a Donut shop by intersecting two shipping containers. Create floor plans and elevations in CAD, then construct a scale model.

The donut shop focuses on transforming a compact shipping container into a functional, welcoming space. A diagonal cut allows angular glazing, bringing natural light into the interior and creating visual connections that make the small space feel more open. The layout also prioritizes smooth circulation, allowing customers to move easily between ordering, pickup, and seating areas while maintaining an efficient workflow for staff.

A conceptual digital rendering of a green greenhouse with a transparent roof, filled with potted plants, situated in an urban environment with trees, street lamps, and buildings in the background.
Architectural blueprint of a greenhouse, showing plan view, front, back, left, right, and isometric perspectives. The greenhouse contains multiple shelves with plants and gardening tools, with a car silhouette for scale.
Diagram of a greenhouse structure with labeled features including acrylic windows, hanging plants, benches for seating, a table for group seating, lamps providing light at night, shelves for potted plants, a roof for shade, and an additional bench.
Sketches of interior and exterior design layouts for a greenhouse or plant shop, including seating areas, indoor and outdoor sections, and decorative plant displays.

Sketches

Sketches of a greenhouse made of polycarbonate panels with notes on design and features, including a flowering display, hanging plants, a seating area, and plant shelves.
Rendering of a greenhouse with a sign reading "The Greenhouse" in green letters, and an illustration of a flower. The greenhouse has a curved glass roof and shelves with potted plants, and silhouettes of people walking nearby.

Graphics

A vending area with a decorative green fence featuring large leafy plant patterns and a sign that reads "Langara" with additional text about design and location. In the background, there are shelves with potted plants and red flowers.
Sign titled "The Greenhouse" describing a student project about designing a parklet at a Canada Line Skytrain station, featuring leaf and butterfly graphics.

Hair Salon

Interiors | Architecture | Furnishing

Objective: Create a 3D model of an 8’x12’ floor with 4.5” thick 12’ high walls mini salon/barbershop based on Japanese, Modernist, 50’s Scandinavian, California, Boho or Hipster themes.

Designed in a Japanese-inspired style, the hair salon features wooden plank wall panels that create a cohesive, rhythmic backdrop, reflecting a natural, minimalist, and functional aesthetic. These panels are integrated into storage, shelving, and seating, maintaining clarity and efficiency throughout the space. Arched openings gently break this rhythm, framing key service areas and creating moments of focus within a calm, continuous environment.

Interior of a modern spa or salon with wooden decor, plants, a wall clock, and a black cat sitting on the floor.

Render created with Google Gemini

Illustration of a modern Asian-style salon interior with a woman standing near a small sitting area, salon equipment, wooden shelving, wall decor, and a hanging lantern light.

Iterations

Interior view of a modern salon with wooden accents, a styling chair, a sink, a side shelf with a potted plant, a room divider, and a black dog sitting on the floor, with the salon logo on the back wall reading 'JUN SALON'.
Interior of a modern salon with wooden accents, plants, a large circular mirror, a desk with a stool, a hanging lantern, and a black cat sitting on the floor.
Blueprint and actual interior view of a salon named FUJUN SALON, with numbered labels indicating various furniture and decor items such as a paper lantern, sink, shelving unit, styling chair, trash can, lighting fixtures, and seating area.

FFE Board & Material Board

Display of architectural or interior design materials including wood samples, paint chips, and detailed floor plans for a salon project.

Candy Box

Experiential Design | Graphics | Crafting

Objective: Randomly select unmarked candy, snacks, or beverages. Analyze the sensory experience, then interpret it using spray paint and paper cutting. Feature a 3-letter adjective in bold, apt typography.

Inspired by the strong, divisive flavour of dill chips, the candy box explores contrasting reactions through the phrase “love and hate”, reflecting how tasters tend to either enjoy or dislike the chips, with little in between. Yellow and green tones reference the chip’s colours, while spiky elements convey its sharp crunch. Cloud-like forms surround the text, suggesting the intensity and spread of its aroma, translating a sensory experience into a visual composition.

Colorful pop-up display with yellow and green accents, featuring cloud and explosion design elements, and the words 'CELEBRATE' in the center.
Bright yellow and green 3D artwork with layered clouds and Chinese characters in the center, accented by a rayburst background, framed by a yellow speckled border.
Person holding a yellow and black sign with the word "SISTER" in bold letters. The person is wearing a cream-colored hoodie and is sitting in front of a wooden chair with a light gray wall background.
Person assembling a decorative paper clock with green, yellow, and black colors, featuring abstract leaf patterns and 3D elements, on a craft table.
A woman standing at a workbench cutting paper with scissors in a woodworking or craft room. There are colorful paper strips and cutouts on the table, and shelves with wood pieces and tools in the background.

Luminous Object

Lighting | Materials | Crafting

Objective: Design, document, and build a luminous object, examining the narrative, form, materiality, and value from concept to fabrication.

Inspired by a birdcage, the Luminous Object frames light within an enclosure, using structure to both contain and reveal illumination. At its core, the light serves as a central, life-giving element, while the rigid frame establishes a structural system that supports and defines the form. In contrast, interwoven crocheted vines and flowers introduce a soft, organic layer. Together, these elements evoke a body-like composition where structure and fragility coexist, transforming the object into an exploration of light as a living, spatial presence rather than a purely functional source.

A decorative lantern with artificial pink and white flowers and green crocheted vines surrounding it, displayed against a black background. The lantern has a wooden structure with a lightbulb inside.
Technical drawing of a decorative lantern, showing front, side, back, top, and bottom views with detailed measurements.
Two women working on woodworking projects in a workshop. One woman with dark hair, wearing a brown shirt and blue gloves, is working on a piece of wood. The other woman with glasses, ginger hair, wearing a blue jacket, is handling multiple wooden pieces. The workspace has various tools, wood pieces, and supplies on the tables.
A woman in a maroon sweatshirt and black pants is working in a workshop, wearing blue gloves. She is standing at a wooden workbench, inspecting an object. There are sketches, pieces of wood, and a blue vise on the table. In the background, there are shelves with small wooden structures, a bulletin board, and two black chairs with metal legs against a yellow wall.
Hand-drawn sketches of decorative metalwork designs, including hexagon and octagon shaped bases, ornate window panels with swirling patterns, and a detailed domed structure with intricate wrought ironwork, all labeled with notes comparing hexagon and octagon shapes.
Sketches of various birdcage designs, featuring different shapes, decorative details, and styles.
A wooden board with black metal decorative cutouts featuring intricate scrollwork and patterns. The background shows a workspace with various crafting tools, a water bottle, and a white bag.

Schematic Booklet

Graphics

Objective: Design a professional architectural proposal that demonstrates layout design and the understanding of architectural communication. Create a comprehensive document that effectively presents architectural project concepts to potential clients. 

The fictional Delphi Architecture approaches the built environment as a dialogue between history, light, and materiality. Using the existing works of BLUE Architects, this schematic proposal, featuring the 707 Café, 1402 Coffee Bar and Arabica, explores how minimalist interventions can revitalize heritage structures. By treating light as a primary building material and utilizing spatial voids, the designs create a sense of calm within the urban fabric. Each project emphasizes material honesty such as local wood, raw stone, and rippled glass, in order to transform everyday rituals into immersive architectural experiences.

A brochure for delphi architecture featuring a modern interior design with an open hallway, natural light, and plants.
Scenic view of a lake with trees and a partly cloudy sky.
Table of contents page with sections and page numbers listed vertically, including letter of introduction, project overview, company overview, team’s experience, coffee bar, Arabica coffee, Zolaism Café, credits/footnotes, all in brown text on white background.
Exterior view of 1402 Coffee Bar, a small cafe with a brick facade, located in Mount Pleasant, Vancouver, British Columbia.
Modern, minimalist interior of an architecture firm's office with a glass partition, plants, and clean white walls.
Architectural diagram illustrating the layout of a coffee bar with labeled areas: counter, indoor seating zone, outdoor seating area, walkway, and seating area in 'box', along with accompanying design notes.
Aerial view of a harbor filled with sailboats and yachts, with a city skyline, a bridge, and mountains in the background.
Gold-colored cursive letter 'd' and 'h' on a white background.
email icon